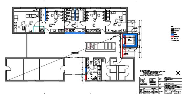
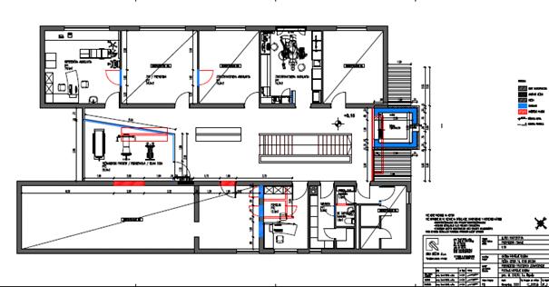
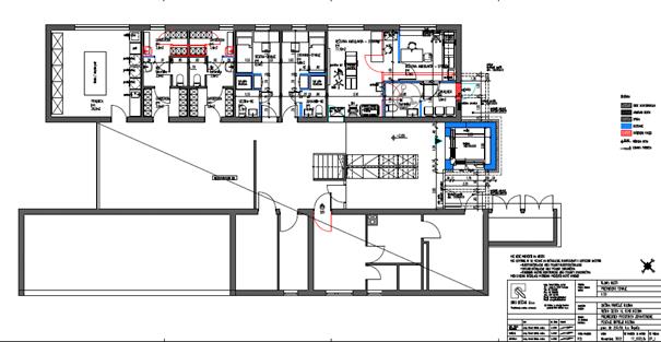
Zdravstvena postaja Hrpelje z obnovo do sodobnejših in dostopnejših prostorov

20. 5. 2024